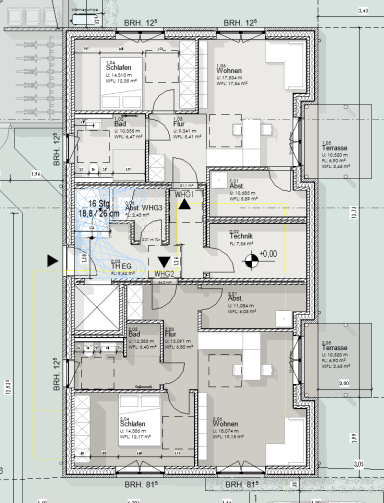
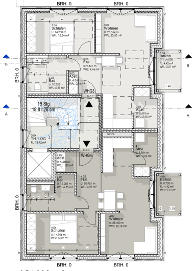
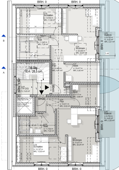
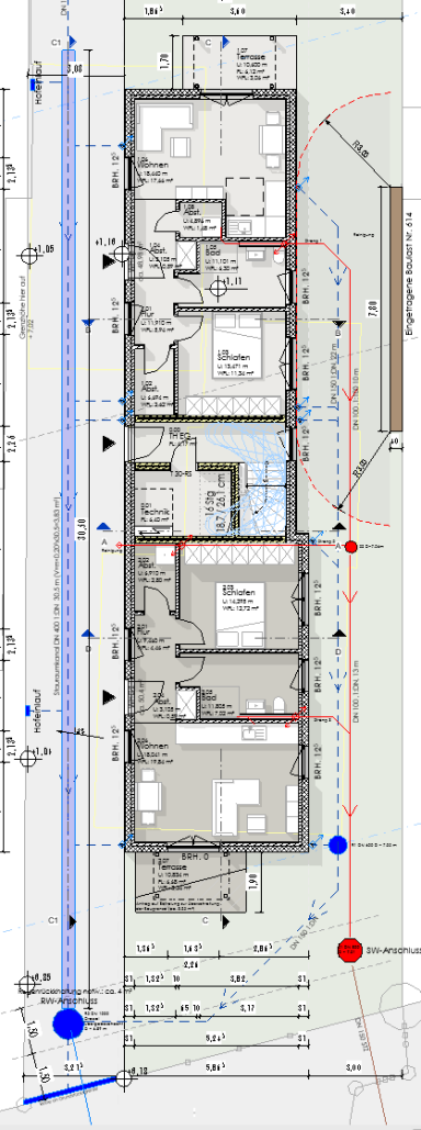
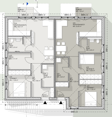
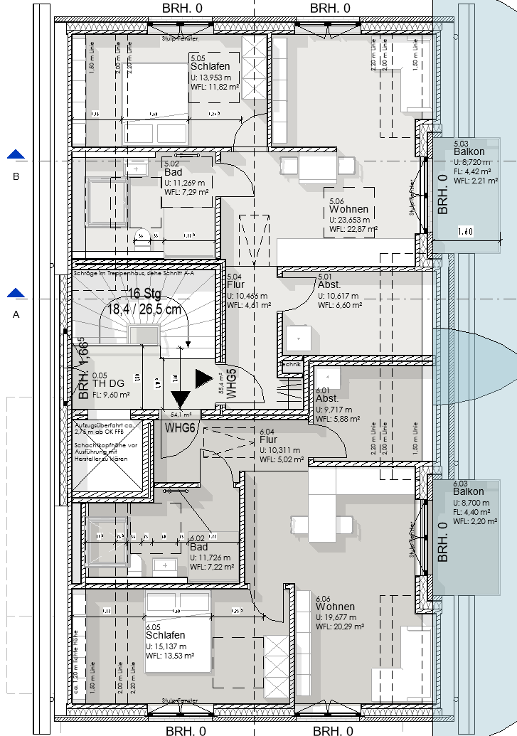
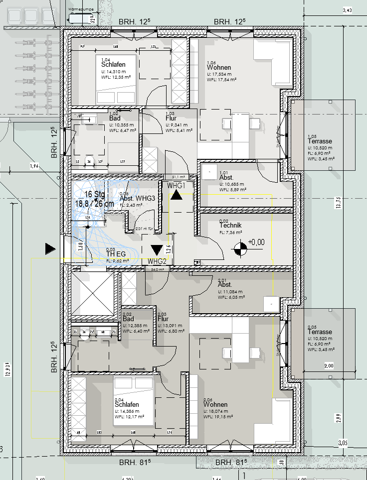
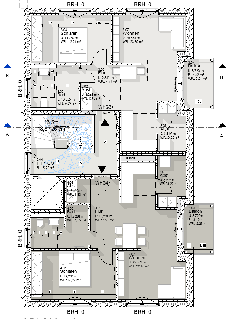
MEHRFAMILIENHÄUSER
BHS 156
Bauplanung in Oldenburg, Osternburg
Mehrfamilienwohnhaus mit 11 Wohneinheiten & 11 KfZ-Einstellplätzen in CLT-Bauweise mit Klinker-Fassade
CLT steht für Cross Laminated Timber, auf Deutsch kreuzweise verleimtes Brettsperrholz. Es handelt sich dabei um ein innovatives, industriell gefertigtes Holzprodukt, das im modernen Holzbau – insbesondere im mehrgeschossigen Hochbau – zunehmend an Bedeutung gewinnt.
Aufbau und Herstellung:
CLT besteht aus mehreren Lagen massiver, getrockneter Holzlamellen (meist aus Fichte), die kreuzweise (90° versetzt) aufeinandergelegt und flächig miteinander verleimt werden.
CLT wird als tragendes Wand-, Decken- und Dachelement verwendet und ermöglicht den Bau von mehrgeschossigen Gebäuden komplett oder teilweise in Holzbauweise. Durch industrielle Vorfertigung lassen sich große, maßgenaue Bauteile herstellen, was schnelle Bauzeiten und eine präzise Montage auf der Baustelle erlaubt.
Vorteile von CLT im Hochbau:
Hohe Tragfähigkeit bei vergleichsweise geringem Eigengewicht
Gute brandschutztechnische Eigenschaften durch das vorhersehbare Abbrandverhalten von Massivholz
Exzellente Ökobilanz: CLT ist ein nachwachsender Rohstoff, speichert CO₂ und ermöglicht nachhaltiges Bauen
Kurze Bauzeiten durch hohen Vorfertigungsgrad
Gestalterische Vielfalt durch sichtbare Holzoberflächen
Bauort: Oldenburg (Stadt)
Planungsbeginn: Januar 2024
Genehmigung: Dezember 2024
Fertigstellung: Februar 2025

KRS 036
Bauplanung in Oldenburg, Eversten
Mehrfamilienwohnhaus mit 8 Wohneinheiten & 8 KfZ-Einstellplätzen in CLT-Bauweise mit Klinker-Fassade
Bauort: Oldenburg (Stadt)
Planungsbeginn: März 2024
Genehmigung: Dezember 2024
Fertigstellung: 2025

DSS 006
Bauplanung in Oldenburg, Kreyenbrück
Mehrfamilienwohnhaus mit 6 Wohneinheiten & 6 KfZ-Einstellplätzen in Massiv-Bauweise mit Klinker-Fassade
Bauort: Oldenburg (Stadt)
Planungsbeginn: April 2024
Genehmigung: Dezember 2024
Fertigstellung: April 2026

SCS 100
Bauplanung in Oldenburg
Zwei Mehrfamilienwohnhäuser mit je 7 Wohneinheiten & 14 KfZ-Einstellplätzen in CLT-Bauweise mit Klinker-Fassade
Bauort: Oldenburg (Stadt)
Planungsbeginn: April 2024
Genehmigung: Februar 2025
Fertigstellung: 2026

YKS 015
Bauplanung in Oldenburg, Eversten
Mehrfamilienwohnhaus mit 5 Wohneinheiten & 3 KfZ-Einstellplätzen in Massiv-Bauweise mit Klinker-Fassade
Bauort: Oldenburg (Stadt)
Planungsbeginn: März 2025
Genehmigung: August 2025
Fertigstellung: 2026

WWS 096
Bauplanung in Osnabrück, Voxtrup
Drei Mehrfamilienwohnhäuser mit 30 Wohneinheiten & 30 KfZ-Einstellplätzen in Massiv-Bauweise mit Klinker-Fassade und HPL-Verkleidung
Besonderheiten und technische Highlights:
Nachhaltige Energieversorgung durch PV-Carports: Die Stellplätze werden überwiegend in Form großzügiger Carportanlagen ausgeführt, auf deren Dächern leistungsfähige Photovoltaikanlagen installiert sind. Der erzeugte Strom wird zur Eigenversorgung der Allgemeinbereiche wie Beleuchtung, Haustechnik oder E-Ladeinfrastruktur genutzt – ein klarer Beitrag zur Reduzierung des CO₂-Fußabdrucks und zur Senkung der Betriebskosten.
Herausforderung Hochspannungsleitung: Das Grundstück befindet sich im Einflussbereich von Hochspannungsleitungen der Amprion GmbH. Diese besondere Lage erforderte eine enge Abstimmung mit dem Netzbetreiber sowie eine sorgfältige Einhaltung aller relevanten Abstands- und Sicherheitsregelungen. Durch vorausschauende Planung konnte das Projekt trotz dieser technischen Herausforderung erfolgreich umgesetzt werden.
Familienfreundliches Wohnen: Zur Förderung der Aufenthaltsqualität entsteht auf dem Grundstück ein eigener Kinderspielplatz. Dieser schafft nicht nur Raum für Spiel und Begegnung, sondern stärkt auch die soziale Integration innerhalb der Wohnanlage.
Bauort: Osnabrück (Stadt)
Planungsbeginn: März 2025
Genehmigung: April2026
Fertigstellung: 2027

BLS 29A
Bauplanung in Oldenburg, Eversten
Mehrfamilienwohnhaus mit 10 Wohneinheiten & 5 KfZ-Einstellplätzen in CLT-Bauweise mit Klinker-Fassade
Bauort: Oldenburg (Stadt)
Planungsbeginn: Januar 2025
Genehmigung: Mai 2025
Fertigstellung: 2026

AMS021
Neubau eines Mehrfamilienwohnhauses mit 9 Wohneinheiten
Bauort: Diepholz (Stadt)
Planungsbeginn: August 2025
Genehmigung: Februar 2026

DVS007
Neubau eines Wohnhauses mit 6 Wohneinheiten
Bauort: Oldenburg (Stadt)
Planungsbeginn: Juli 2025
Genehmigung: Januar 2026

FDR030
Entwurf eines Mehrfamilienwohnhauses mit 5 Wohneinheiten
Bauort: Oldenburg (Stadt)
Planungsbeginn: September 2025

SBW 068
Neubau eines Wohnhauses mit 4 Wohneinheiten
Bauort: Oldenburg (Stadt)
Planungsbeginn: September 2025
Genehmigung: in Bearbeitung

KSD 012
Neubau einer Mehrfamilienwohnhaues mit 5 Wohneinheiten
Schmales Grundstück - schmaler Baukörper. Mit nur 5,60 m Breite an der schmalsten Stelle wurden fünf neue Wohnungen effizient geplant und genehmigt.
Bauort: Delmenhorst (Stadt)
Planungsbeginn: Oktober 2025
Genehmigung: Februar 2026

CBS 002
Neubau eines Wohnhauses mit 13 Wohneinheiten
Bauort: Garrel, Cloppenburg
Planungsbeginn: Dezember 2025
Genehmigung: eingereicht im März 2026

BBW 058
Neubau eines Wohnhauses mit 4 Wohneinheiten
Bauort: Oldenburg (Stadt)
Planungsbeginn: Februar 2026
Genehmigung: in Bearbeitung

BLS 010
Neubau zweier Wohnhäuser mit je 4 Wohneinheiten
Bauort: Garrel, Cloppenburg
Planungsbeginn: Februar 2026
Genehmigung: eingereicht im April 2026












































































