GEWERBE
OSW 36A
Neubau eines Wohn- & Geschäftshaues
Bauort: Oldenburg (Stadt)
Planungsbeginn: Juni 2025
Genehmigung: Februar 2026

ZBK 032
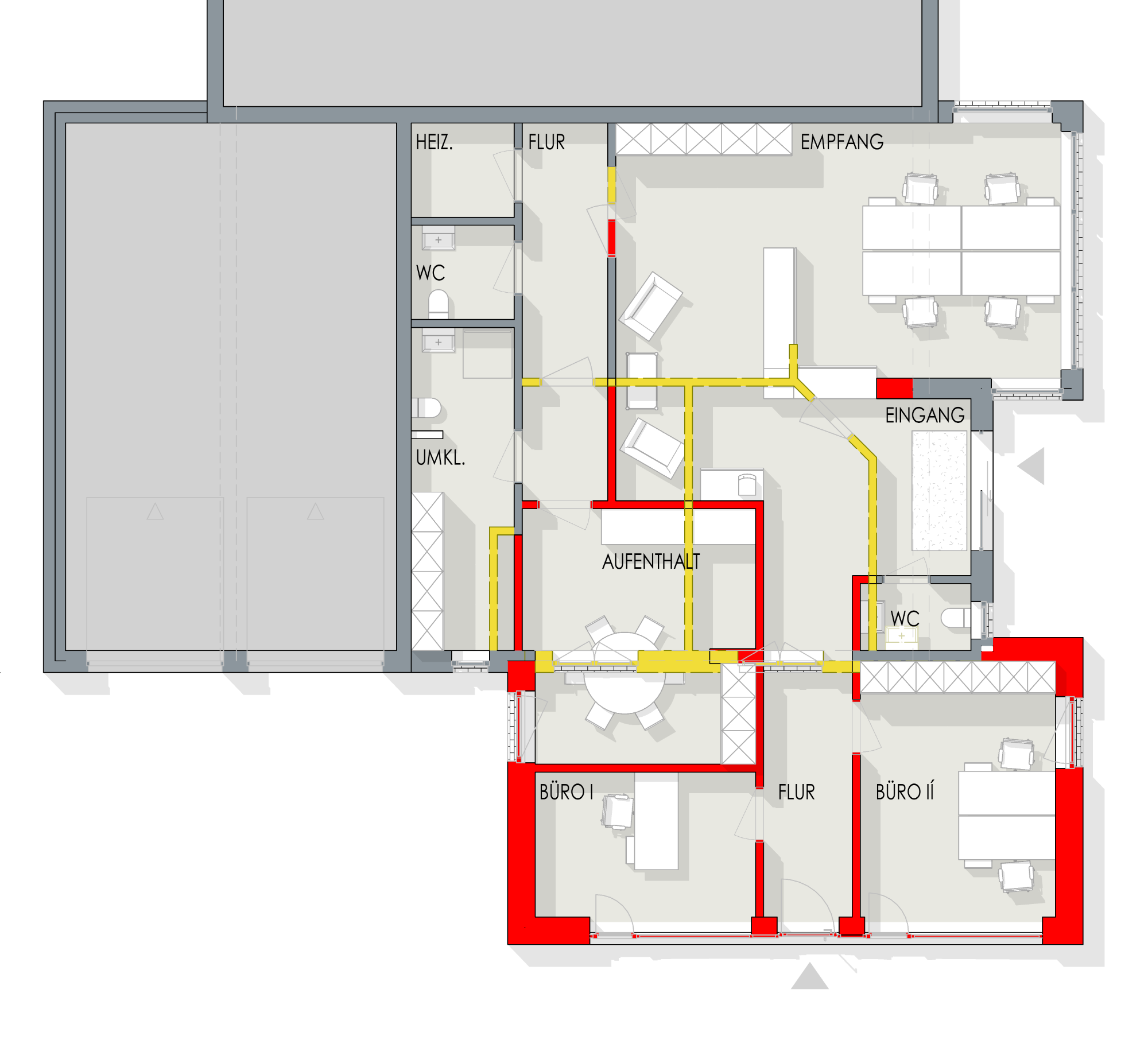
Umbau / Anbau einer KfZ-Werkstatt
Bauort: Cloppenburg (Stadt)

Bauort: Oldenburg (Stadt)
Planungsbeginn: Juni 2025
Genehmigung: Februar 2026

Bauort: Cloppenburg (Stadt)

Wir benötigen Ihre Zustimmung zum Laden der Übersetzungen
Wir nutzen einen Drittanbieter-Service, um den Inhalt der Website zu übersetzen, der möglicherweise Daten über Ihre Aktivitäten sammelt. Bitte überprüfen Sie die Details in der Datenschutzerklärung und akzeptieren Sie den Dienst, um die Übersetzungen zu sehen.